消防智能疏散指示系統A-FP-A310(0.6/24)
閱讀次數:1809 發布時間:2020-12-18

消防智能疏散指示系統A-FP-A310(0.6/24)應用必要性以及啟動原理
據公安部消防局數據,2019年1月至10月,我國共發生電氣火災事故7.4萬起,造成370人死亡、226人受傷,直接財產損失11.2億元。在7.4萬起電氣原因引發的火災事故之中,漏電、短路、過載、接觸不良等電路問題4.6萬起;電氣設備故障和電熱器具2.2萬起;其他電氣原因引發的火災事故6000起。
雖然城鄉居民點火災僅占總數的44.8%,但共有1045人死亡,占總死亡人數的78.3%,遠遠超過其他地方的死亡人數。
隨著社會的發展和人民生活水平的提高,基礎企業將有空調、電磁爐、電烤箱等大功率家電。在用電過程之中,如果電力過載,很容易引發火災。還有很多火災是由電瓶車充電引起的,老舊住宅線路裸露,老化和漏電。這是生活之中常見的現象。此外,在大型工廠,變壓器過載和火災也不少見。
發生火災時,火源溫度或電流的變化或產生的煙霧可觸發A-FP-A310(0.6/24)智能疏散系統。根據火災報警信息(即煙霧、溫度傳感器、手動報警位置)和煙霧蔓延方向,通過地面指示燈、疏散方向指示燈、緊急出口標志、樓層標志等配合動作,觸發智能報警系統A-FP-A310(0.6/24),智能化設計遠離火源的最佳疏散路線,使被困人員安全、準確、快速地逃離火災現場。
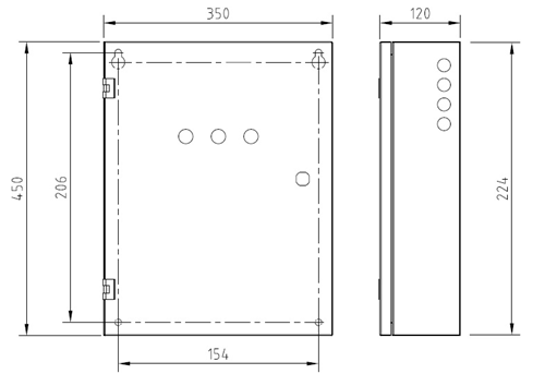
參數設置

外形尺寸

應急照明分配電裝置主要型號
A-FP-A310(0.6/24)、A-FP-A310(0.2/24)、A-FP-A310(36)、A-FP-A310(0.6/36)
消防智能疏散指示系統A-FP-A310(0.6/24)工作模式
如何最大限度地保障消防人員的安全,減少火災的發生,減少財產損失?應急管理部門表示,將加強A-FP-A310(0.6/24)“智能消防”建設,加強防火宣傳教育,最大限度地減少火災發生。
智慧消防A-FP-A310(0.6/24)綜合運用5g、物聯網、云計算、大數據等新興信息技術,打造端到端的數據鏈,將整個消防行業的所有參與者連接起來,實現從“傳統消防”到“現代消防”的轉變。依托全面、實時、規范的消防大數據資源系統,采用新技術實現的A-FP-A310(0.6/24)智能消防能更好地提高消防效率,控制災害損失,最大限度地減少損失。
A-FP-A310(0.6/24)智能疏散系統終端為智能消防產品的應用提供了設備支持,智能消防監控數據的讀取和共享能力將大大增強。同時,基于5g的智能消防還將促進it與物聯網傳感設備的互操作性,將廣泛應用于城市環境監測和應急防災。
下一篇:BV-C-E16應急照明控制器




